Obiteljska kuća smještena je u naselju udaljenom četrdesetak minuta vožnje od Zagreba, na parceli na križanju dviju prometnica. Pristup je organiziran sa sjeverne strane, što je direktno utjecalo na prostornu dispoziciju kuće. Objekt je pozicioniran u sjeverozapadnom dijelu parcele, čime se otvorio kvalitetan osunčan prostor prema jugu i jugoistoku, gdje su smješteni glavni dnevni i vanjski boravišni sadržaji.
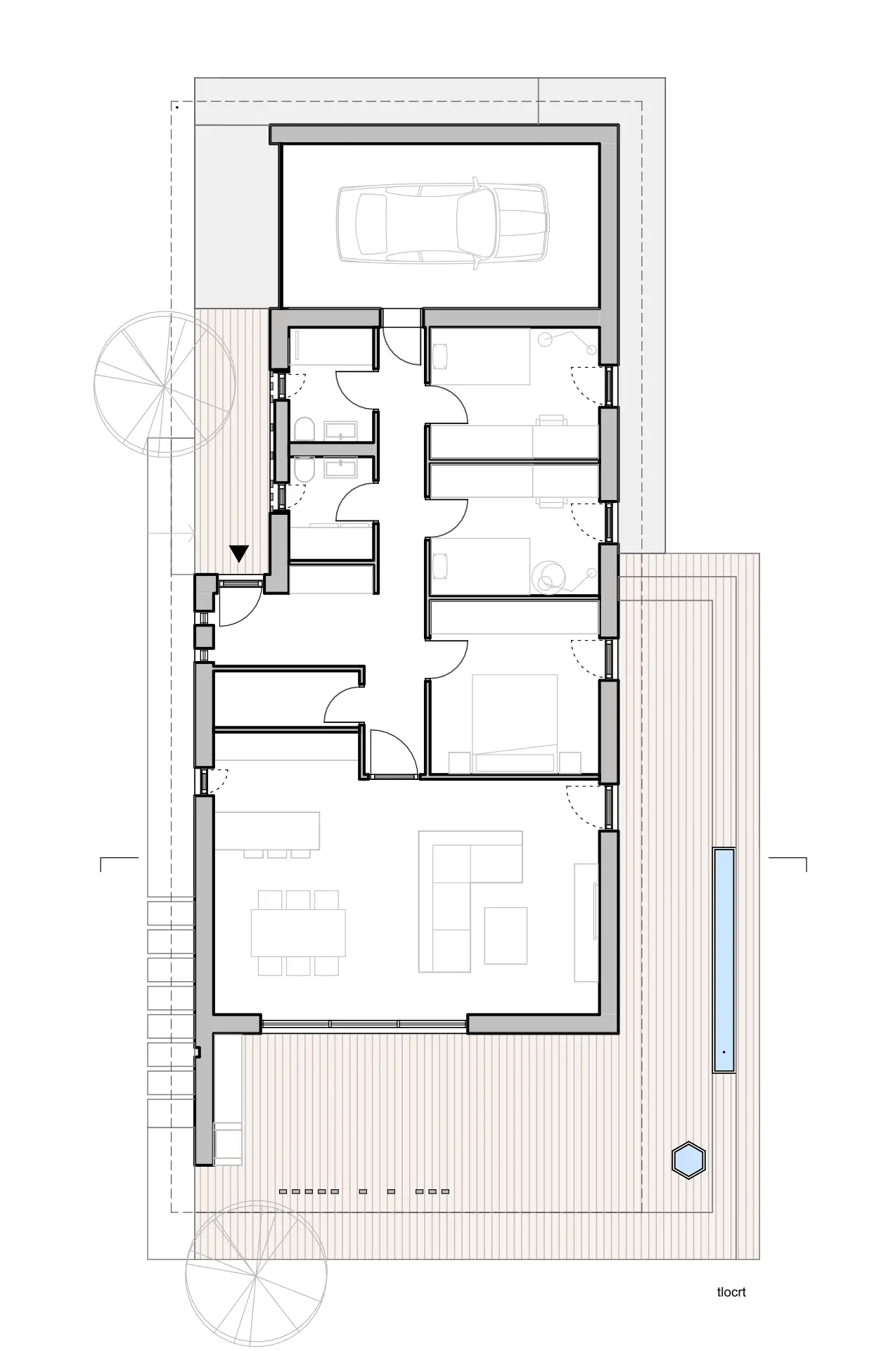
Kuća je koncipirana kao prizemnica površine 130 m², s tri spavaće sobe i garažom. Iako kompaktna, pažljivo projektirana organizacija omogućuje visoku razinu funkcionalnosti i komfora. Vanjski prostori, površine oko 70 m², uključuju natkrivene i otvorene prijelazne zone – poput terase i ulaznog trijema – koje proširuju životni prostor prema eksterijeru.
Tlocrtna organizacija slijedi logiku orijentacije: dnevni prostori otvaraju se prema sunčanoj unutrašnjosti parcele, spavaće sobe prema istoku, a servisne zone (garaža, sanitarije, spremišta) smještene su uz prometnicu na sjeverozapadu.
Važan element projekta je bazen kao dio vanjskog ambijenta koji istovremeno ima održivu komponentu – sakuplja oborinsku vodu s krova kuće, ali i estetsku vrijednost jer je izveden vidljivo – pomoću lanca kao vertikalnog elementa koji usmjerava vodu s krova u sustav bazena.
Poseban značaj pridaje se očuvanju lokalnog identiteta – stari kameni bunar, iako oštećen, planira se rekonstruirati i integrirati u vanjski prostor kao simbolički i ambijentalni element.
Fasada je projektirana u svijetlosivoj žbuci s naglašenim betonskim vertikalama koje imaju dvostruku funkciju – estetsku i funkcionalnu. Krov je predviđen u sivom falcanom limu, a kontrast postižu topli elementi od drvenog deckinga u vanjskom prostoru, unoseći prirodnu teksturu i osjećaj ugode u prostor oko kuće.
Projekt objedinjuje suvremenu funkcionalnost i održivost, stvarajući harmoničan životni ambijent u skladu s potrebama suvremene obitelji.
Tlocrtna organizacija slijedi logiku orijentacije: dnevni prostori otvaraju se prema sunčanoj unutrašnjosti parcele, spavaće sobe prema istoku, a servisne zone (garaža, sanitarije, spremišta) smještene su uz prometnicu na sjeverozapadu.
Važan element projekta je bazen kao dio vanjskog ambijenta koji istovremeno ima održivu komponentu – sakuplja oborinsku vodu s krova kuće, ali i estetsku vrijednost jer je izveden vidljivo – pomoću lanca kao vertikalnog elementa koji usmjerava vodu s krova u sustav bazena.
Poseban značaj pridaje se očuvanju lokalnog identiteta – stari kameni bunar, iako oštećen, planira se rekonstruirati i integrirati u vanjski prostor kao simbolički i ambijentalni element.
Fasada je projektirana u svijetlosivoj žbuci s naglašenim betonskim vertikalama koje imaju dvostruku funkciju – estetsku i funkcionalnu. Krov je predviđen u sivom falcanom limu, a kontrast postižu topli elementi od drvenog deckinga u vanjskom prostoru, unoseći prirodnu teksturu i osjećaj ugode u prostor oko kuće.
Projekt objedinjuje suvremenu funkcionalnost i održivost, stvarajući harmoničan životni ambijent u skladu s potrebama suvremene obitelji.








