Vila Privlaka smještena je u istoimenom obalnom naselju, u neposrednoj blizini mora, na parceli izdužene forme koja snažno definira arhitektonski koncept građevine. Razvija se kroz dvije etaže, oblikovane kao jasno čitljivi volumeni u međusobnom dijalogu.
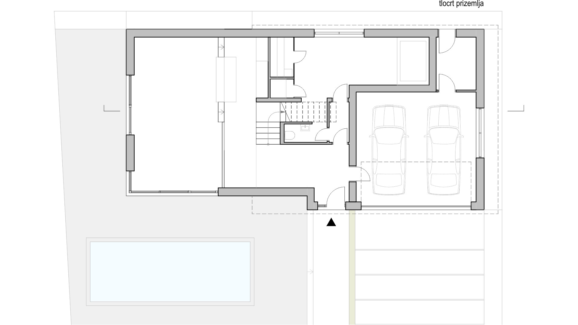
Glavni volumen etaže prizemlja slijedi smjer pružanja parcele. Ulazi su pozicionirani na jugozapadnom pročelju, dok je objekt maksimalno povučen prema stražnjem dijelu parcele čime se osiguravaju privatnost i kvalitetniji odnos prema vanjskom prostoru.
Prizemlje je oblikovano kao otvoreni prostor namijenjen zajedničkim i rekreativnim sadržajima stvarajući tako cjelovitu zonu za boravak i opuštanje. Unutarnji prostori se otvaraju prema terasi s bazenom, čiji oblik i položaj prate linearno pružanje kuće. Prizemlje je formirano na dva nivoa, čime se arhitektura prilagođava prirodnom padu terena.
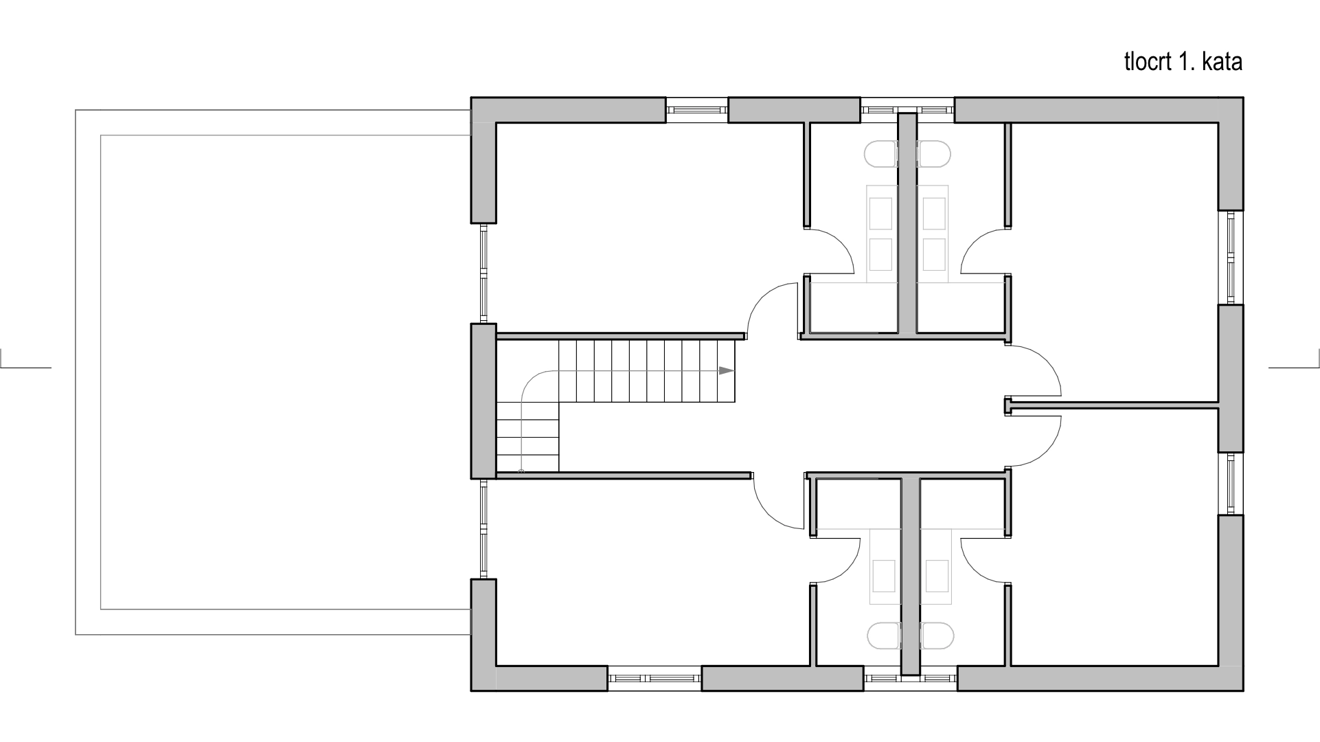
Kat je oblikovan kao volumen koji se djelomično nadvija nad prizemljem unutar kojega su smještene spavaće sobe s kupaonicama, osmišljene kao intimna i mirna zona.
Arhitektonsko rješenje temelji se na jasnim volumenima i funkcionalnoj organizaciji prostora.





